Appartement 3 pièces - Hyper centre de Strasbourg
Rue de l'église - 67000 Strasbourg
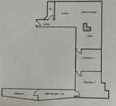
À proximité de la place Kléber, venez découvrir cet appartement 3 pièces d'une surface de 70 m² en enfilade composé d'une cuisine meublée, un salon, deux chambres, une salle d'eau avec toilettes et un petit débarras.
Chauffage et eau chaude individuels électrique.
Loyer mensuel : 780 €
Charges mensuelles en sus : 50 €
Frais d'agence en sus : 786 €
Merci de prendre contact avec l'agence par téléphone pour organiser une visite.
Loyer : 780.00 €
Avance sur charges : 50.00 €
Frais d'agence : 786.00 € TTC

Diagnostic de performance énergétique
